Prémiový rodinný dům 4+kk se zahradou – rezidenční projekt na okraji Kutné Hory
00421-1
ID nemovitosti
336 m2
Velikost
Popis
Prémiový rodinný dům 4+kk se zahradou – rezidenční projekt na okraji Kutné Hory
Představujeme vám moderní rezidenční projekt komorních domů na klidném okraji historické Kutné Hory. Tento dům 4+kk je součástí nadstandardní rezidence, která nabízí spojení soukromí, prostoru a komfortu skutečného rodinného bydlení.
Nejde o byt v bytovém domě – jedná se o plnohodnotný dům v rámci menšího rezidenčního projektu, s vlastním vstupem, zahradou a důrazem na kvalitní a klidné bydlení mimo rušné centrum.
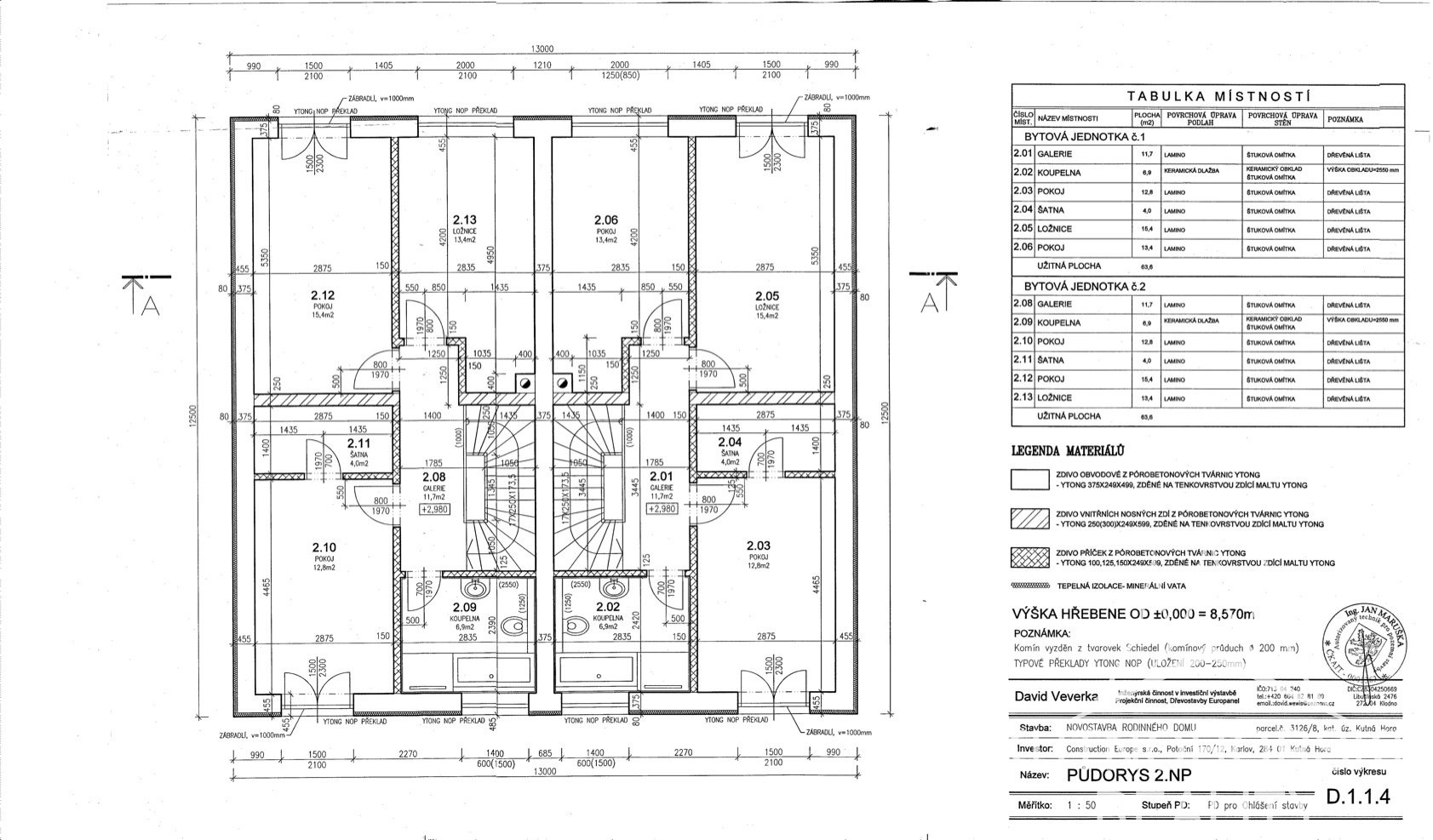
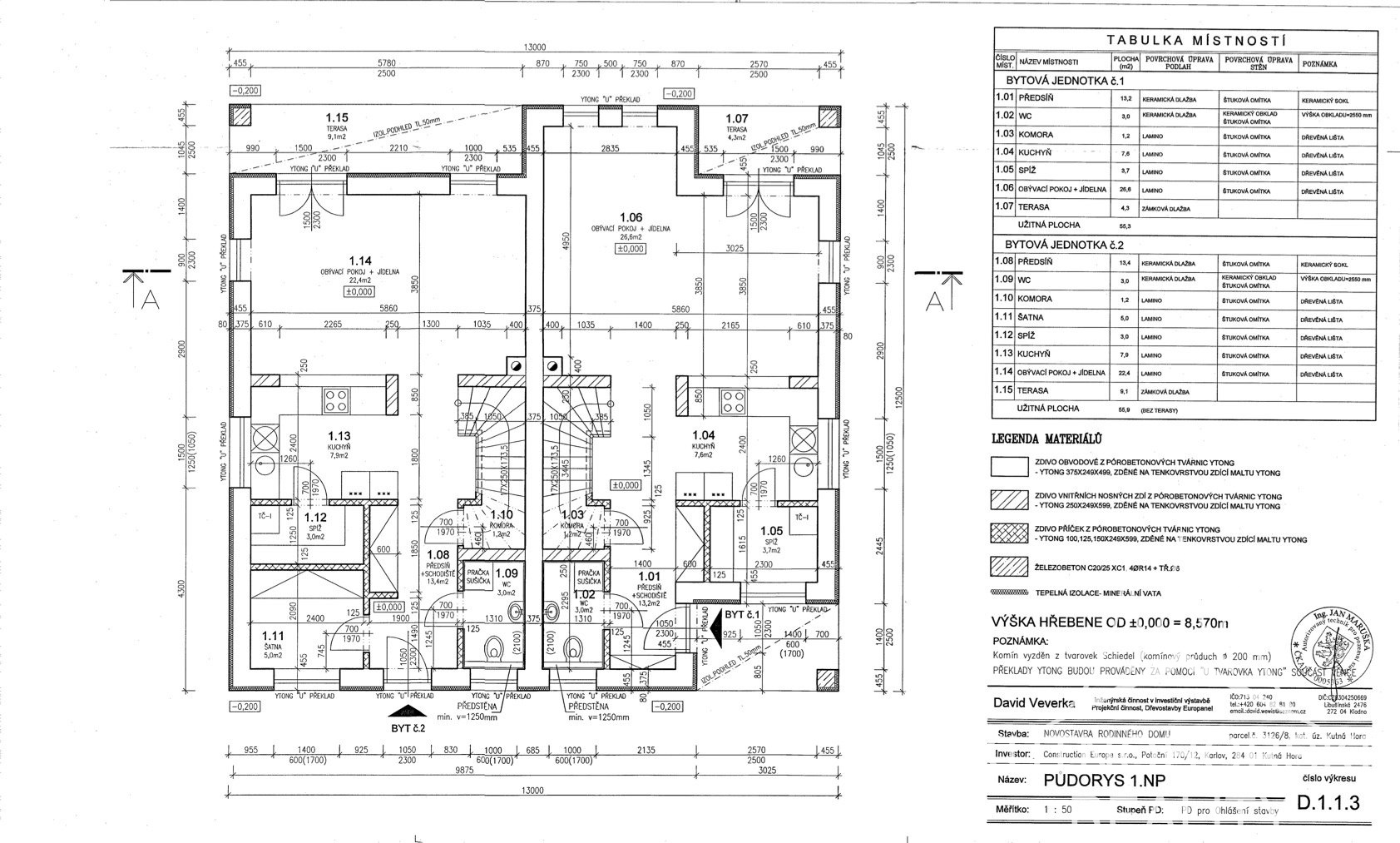
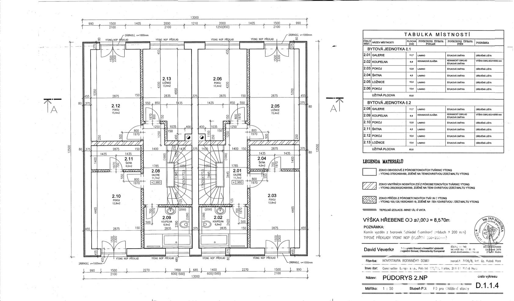
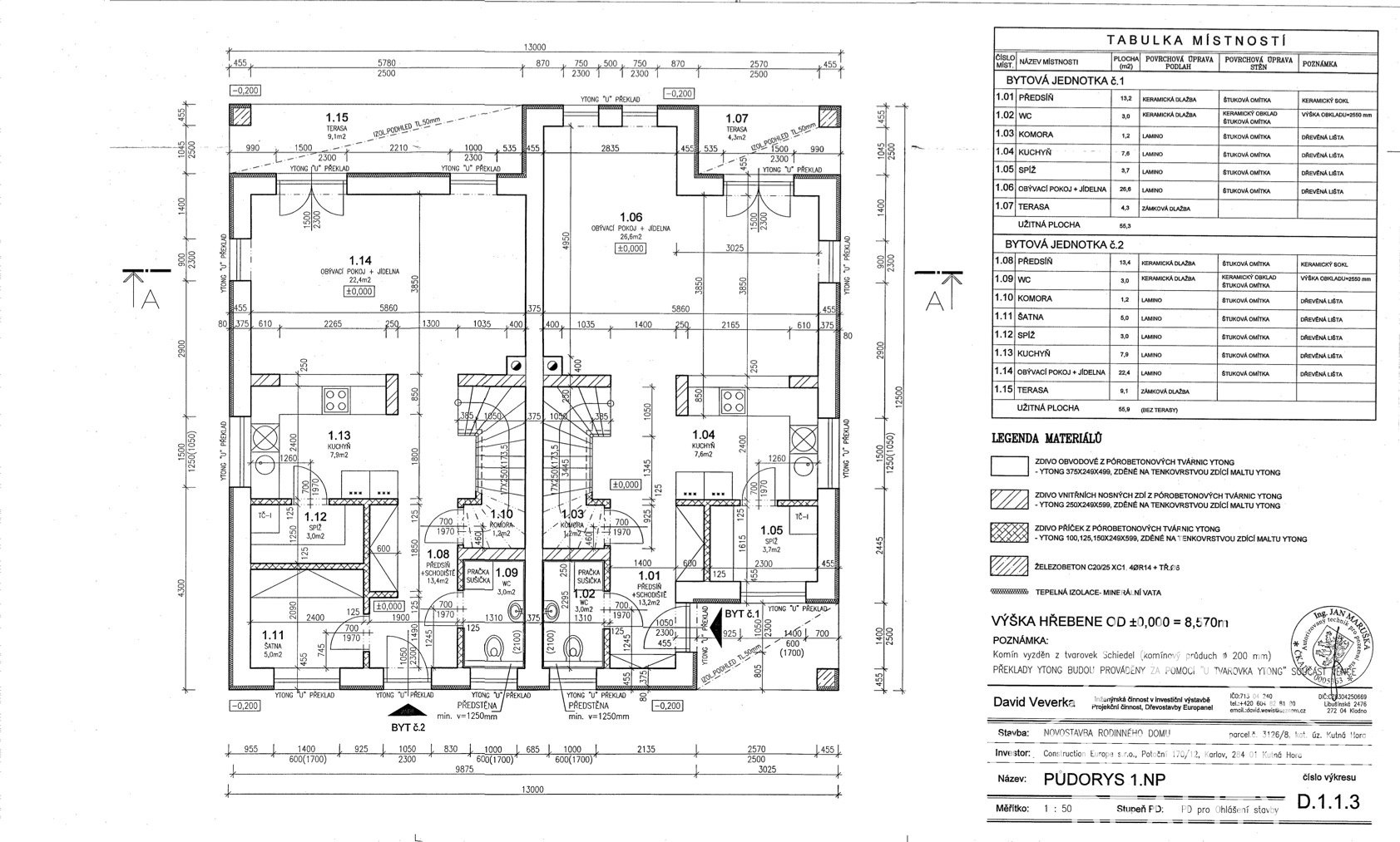
Jedná se o polovinu dvojdomu s vlastním vstupem, zahradou a parkováním přímo před domem. Bydlení tak přináší komfort rodinného domu při zachování praktické velikosti a jednoduché údržby.
Dům je navržen s důrazem na kvalitní materiály, moderní technologie a energeticky úsporný provoz. Samozřejmostí je promyšlená dispozice a dostatek přirozeného světla, který podtrhuje celkový pocit vzdušnosti a pohodlí.
Součástí je také půdní prostor o výměře cca 70 m², který nabízí další potenciál využití dle vašich potřeb.
Projekt se postupně plní. V dokončeném dvojdomě je levá jednotka rezervovaná, pravá je zatím volná. Druhý dům se dokončuje – levá část je volná a pravá je aktuálně v řešení rezervací.
Velkým benefitem je i samotná hodnota této nemovitosti – za cenu pražského bytu 2+kk zde získáváte plnohodnotný dům se zahradou, moderním technologickým zázemím a možností žít pouhých 40 minut od Prahy v jedinečné atmosféře historického města.
Bydlení, které dává smysl – dnes i do budoucna.
Cena za jednotku: 7 980 000 Kč
Možnost financování hypotečním úvěrem
Adresa
- ID nemovitosti 00421-1
- Cena 7 980 000 Kč
- Typ nemovitosti Na prodej
- Velikost 336 m2
- Kategorie Domy Rodinný
- Lokalita K Jakubu, Kutná Hora
- Okres Kutná Hora
- Plocha 336 m²
- Počet podlaží 1
- Stav objektu Novostavba
- Budova Cihlová
- Energetická náročnost budovy C - Úsporná

